高知市神田
650万円 4DK
2025.9.25
- ■所在地/高知市神田
- ■販売価格/650万円(不課税)
- ■建物面積/85.80㎡(25.95坪)
- ■土地面積/117.15㎡(34.43坪)
- ■築年月/1977年10月
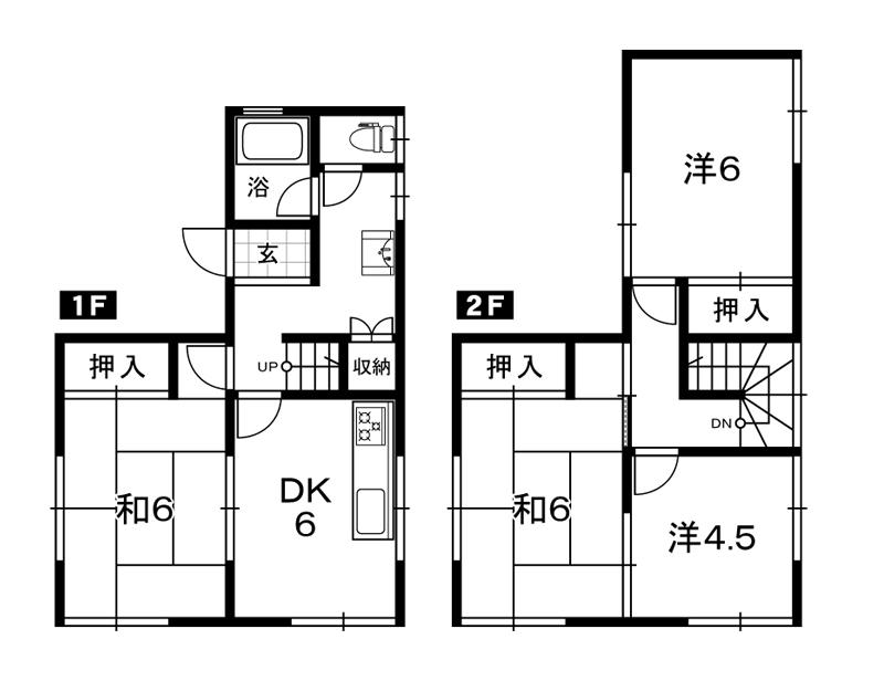
- ■間取り/1階:DK6・和6
2階:洋6・洋4.5・和6 - ■南側は一段低く日当たり良いです。
- オール電化。
- 積水ハウスの建物。
- エアコン・エコキュート新しいです。
- 令和6年8月畳交換済み。
- ■交通/船岡団地バス停歩10分
- ■販売形態/仲介


通話無料!
お電話でのお問い合わせはこちらから
0120-882-511
受付/10:00〜18:00
※スマートフォンの方は電話番号をタップでつながります。

